Prijsverlaging:Sloelaan 1, 4535 ED Terneuzen - Foto
Prijsverlaging
+25

Sloelaan 1 4535 ED Terneuzen € 309.000,- k.k.

  • Woonhuis
  • 5 kamers
  • 4 slaapkamers
  • 1 badkamer
  • Bouwjaar 1974
  • 176 m² perceeloppervlakte
  • 129 m² gebruiksoppervlakte
  • D Energielabel D
Ruime gezinswoning met 4 slaapkamers en zonnepanelen.

Beschrijving

Ruime gezinswoning met 4 slaapkamers, vaste trap naar zolder, nieuw dak (2022) en 10 zonnepanelen

Ben je op zoek naar een ruime, praktische gezinswoning met vier slaapkamers, een vaste trap naar zolder en een zonnige tuin? Dan is Sloelaan 1 in Terneuzen absoluut een bezichtiging waard.
Deze goed onderhouden hoekwoning (bouwjaar 1974) beschikt over 129 m² gebruiksoppervlakte wonen en staat op een perceel van 176 m². Dankzij de aanbouw aan de achterzijde is er een royale en lichte leefruimte ontstaan, ideaal voor een gezin.

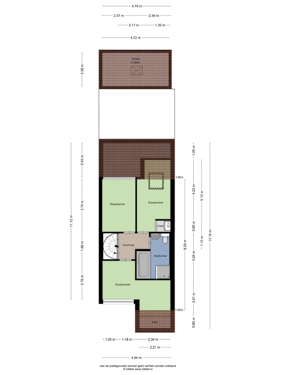
Indeling

Begane grond
De keuken is geplaatst in de aanbouw waardoor de woonkamer extra ruim is opgezet. Er is een comfortabele zithoek bij de houtkachel en voldoende ruimte voor een grote eettafel. De indeling is praktisch en gezinsvriendelijk.
De begane grond is grotendeels voorzien van kunststof kozijnen. Alleen het kozijn in de keuken is uitgevoerd in hout. Daarnaast zijn er rolluiken aanwezig.

Eerste verdieping

Eerste verdieping
Op de eerste verdieping bevinden zich drie slaapkamers en de badkamer. De badkamer heeft een apart ligbad, douche, wastafel en toilet.

Tweede verdieping

Via een vaste trap bereik je de zolderverdieping. Hier bevindt zich de vierde slaapkamer. Ideaal als tienerkamer, werkplek of hobbyruimte. Daarnaast is er praktische bergruimte.

Tuin

Tuin en berging
De achtertuin is gelegen op het zuidoosten, waardoor je hier al vroeg op de dag van de zon kunt genieten. Achterin de tuin staat een grote schuur, perfect voor fietsen, opslag of hobby.

Bijzonderheden

Duurzaamheid en installaties
– Dak vernieuwd in 2022 (voormalige asbestdakbedekking verwijderd)
– 10 zonnepanelen
– Energielabel D (geldig tot 2031)
– Intergas HRE A CW5 cv-ketel (huur)
– Huurbedrag cv-ketel: € 49,20 per maand inclusief onderhoud en service
– Vaste trap naar zolder
– Rolluiken aanwezig

Een ideale woning voor jonge gezinnen die ruimte zoeken, een vaste trap naar zolder willen en waarde hechten aan praktische indeling en recent uitgevoerd onderhoud.

Ligging
De woning ligt in een rustige en kindvriendelijke woonwijk. Zowel een basisschool als een middelbare school bevinden zich om de hoek. Ook speelvoorzieningen, winkels en andere dagelijkse voorzieningen zijn in de directe omgeving aanwezig.
Een ideale woning voor jonge gezinnen die ruimte zoeken, een vaste trap naar zolder willen en waarde hechten aan praktische indeling en recent uitgevoerd onderhoud.

Kaart

Kenmerken

Overdracht

Referentienummer
00016
Vraagprijs
€ 309.000,- k.k.
Inrichting
Niet gestoffeerd
Inrichting
Niet gemeubileerd
Status
Prijsverlaging
Aanvaarding
In overleg
Aangeboden sinds
Vrijdag 20 februari 2026
Laatste wijziging
Zaterdag 4 april 2026

Bouw

Type object
Woonhuis, eengezinswoning, hoekwoning
Soort bouw
Bestaande bouw
Bouwperiode
1974
Dakbedekking
Kunststof
Type dak
Samengesteld
Isolatievormen
Dakisolatie

Oppervlaktes en inhoud

Perceeloppervlakte
176 m²
Woonoppervlakte
129 m²
Inhoud
497 m³
Oppervlakte overige inpandige ruimten
11,3 m²

Indeling

Aantal bouwlagen
3
Aantal kamers
5 (waarvan 4 slaapkamers)
Aantal badkamers
1 (en 1 apart toilet)

Locatie

Ligging
Aan rustige weg
Dichtbij openbaar vervoer
In woonwijk
Nabij school
Nabij snelweg

Tuin

Type
Achtertuin
Hoofdtuin
Ja
Oriëntering
Zuid-west
Staat
Normaal

Energieverbruik

Energielabel
D

CV ketel

CV ketel
Intergas
Warmtebron
Gas
Combiketel
Ja
Eigendom
Huur

Uitrusting

Warm water
CV-ketel
Verwarmingssysteem
Centrale verwarming
Badkamervoorzieningen
Douche
Ligbad
Toilet
Wastafel
Heeft kabel-tv
Ja
Tuin aanwezig
Ja
Telefoonaansluiting aanwezig
Ja
Beschikt over een internetverbinding
Ja
Heeft schuur/berging
Ja
Heeft zonnepanelen
Ja

Kadastrale gegevens

Kadastrale aanduiding
Terneuzen N 546
Perceeloppervlakte
176 m²
Omvang
Geheel perceel
Eigendomsituatie
Zie akte

Brochure(s) en overige bijlagen

meetrapport_A_1628329_20260213153633.pdf Download

Recent

Recent bekeken woningen

Bekijk ons volledige aanbod