Verkocht:Waterlanden 55, 4533 JT Terneuzen - Foto
Verkocht
+22

Waterlanden 55 4533 JT Terneuzen

  • Woonhuis
  • 5 kamers
  • 4 slaapkamers
  • 1 badkamers
  • Bouwjaar 2020
  • 134 m² perceeloppervlakte
  • 121 m² gebruiksoppervlakte
  • A Energielabel A
Aardgasvrij, instapklaar en tot in detail afgewerkt.

Beschrijving

Bieden vanaf 405.000 euro: Waterlanden 55 – instapklaar, energiezuinig en tot in detail afgewerkt.

In de populaire wijk Othene ligt deze moderne eengezinswoning uit 2020. Een woning die rust en eenheid uitstraalt, met oog voor detail gebouwd en volledig klaar voor de toekomst. Hier woon je comfortabel, duurzaam en zonder zorgen.

De woning heeft energielabel A, is aardgasvrij en voorzien van een warmtepomp, vloerverwarming en zonnepanelen. Er zijn vier slaapkamers verdeeld over drie verdiepingen.

Indeling

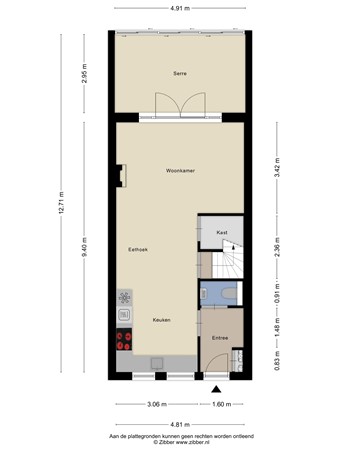
De woonkamer is ruim en licht met een open keuken aan de voorzijde, uitgevoerd met een inductiekookplaat, oven, afzuigkap, vaatwasser en koelkast. De begane grond is volledig voorzien van vloerverwarming. Aan de achterzijde stap je via dubbele tuindeuren de serre in: een fijne verlenging van de woonkamer met glazen schuifdeuren en elektrisch zonnescherm. De serre is recent voorzien van een nieuwe keramische tegelvloer die volledig doorloopt vanuit de woonkamer — een hoogwaardige afwerking die rust en eenheid creëert.

Eerste verdieping

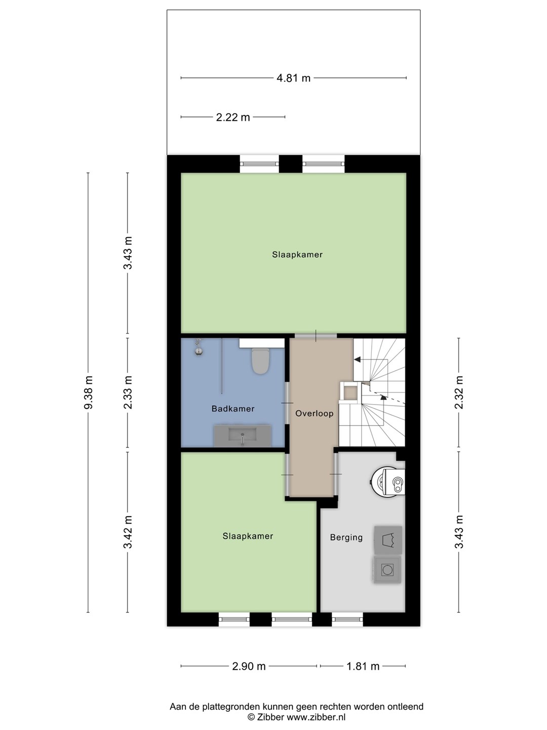
Op de eerste verdieping bevinden zich twee ruime slaapkamers, een moderne badkamer met inloopdouche, tweede toilet en vloerverwarming, en een praktische wasruimte.

Tweede verdieping

De tweede verdieping biedt nog eens twee kamers die ideaal zijn als werkruimte, hobbykamer of logeerkamer.

Tuin

De tuin is onderhoudsarm aangelegd en ligt gunstig op het westen, waardoor je tot laat van de zon kunt genieten. De huidige bewoners hebben hier een grote buitenkeuken met bar gerealiseerd – een heerlijke plek om te koken, borrelen en samen te komen.

Bijzonderheden

Waterlanden 55 ligt in Othene, de jongste wijk van Terneuzen. Een kindvriendelijke omgeving met basisschool, supermarkt, sportfaciliteiten en het Scheldestrandje op korte afstand. Het centrum van Terneuzen en de uitvalswegen richting Hulst, Goes en België zijn uitstekend bereikbaar.
Deze woning is volledig geïsoleerd, aardgasvrij en voorzien van duurzame installaties. Een ideale keuze voor wie comfort wil combineren met lage energielasten en toekomstbestendig wonen.

Bij Harpe Makelaardij draait het om meer dan alleen stenen. We presenteren elke woning met zorg, aandacht en een aanpak die resultaat oplevert. Van huis naar thuis – dát is Harpe Makelaardij.

Kaart

Kenmerken

Overdracht

Referentienummer
00010
Vraagprijs
€ 405.000,- k.k.
Inrichting
Niet gestoffeerd
Inrichting
Niet gemeubileerd
Status
Verkocht
Aanvaarding
In overleg
Aangeboden sinds
Maandag 13 oktober 2025
Laatste wijziging
Maandag 29 december 2025

Bouw

Type object
Woonhuis, eengezinswoning, tussenwoning
Soort bouw
Bestaande bouw
Bouwperiode
2020
Dakbedekking
Dakpannen
Type dak
Zadeldak
Isolatievormen
Dubbel glas
Volledig geïsoleerd

Oppervlaktes en inhoud

Perceeloppervlakte
134 m²
Woonoppervlakte
121,1 m²
Inhoud
455 m³
Oppervlakte externe bergruimte
5,2 m²
Oppervlakte gebouwgebonden buitenruimte
14,5 m²

Indeling

Aantal bouwlagen
3
Aantal kamers
5 (waarvan 4 slaapkamers)
Aantal badkamers
1 (en 1 apart toilet)

Locatie

Ligging
Aan rustige weg
Beschutte ligging
Dichtbij openbaar vervoer
In woonwijk
Nabij school
Nabij snelweg

Tuin

Type
Voortuin
Oriëntering
Oosten
Staat
Prachtig aangelegd
Tuin 2 - Type
Achtertuin
Tuin 2 - Hoofdtuin
Ja
Tuin 2 - Oriëntering
West
Tuin 2 - Heeft een achterom
Ja
Tuin 2 - Staat
Prachtig aangelegd

Energieverbruik

Energielabel
A

Uitrusting

Aantal parkeerplaatsen
3
Warm water
Elektrische boiler
Verwarmingssysteem
Elektrische verwarming
Warmtepomp
Ventilatie methode
Mechanische ventilatie
Badkamervoorzieningen
Inloopdouche
Toilet
Vloerverwarming
Wastafel
Wastafelmeubel
Heeft kabel-tv
Ja
Tuin aanwezig
Ja
Telefoonaansluiting aanwezig
Ja
Heeft rolluiken
Ja
Heeft een dakraam
Ja
Heeft een schuifpui
Ja
Heeft zonnepanelen
Ja
Heeft ventilatie
Ja

Kadastrale gegevens

Kadastrale aanduiding
Terneuzen T 2642
Perceeloppervlakte
134 m²
Omvang
Geheel perceel
Eigendomsituatie
Eigen grond

Media

Video

Virtuele tour

Plattegronden

Brochure(s) en overige bijlagen

meetrapport_A_1584680_20251009094251.pdf Download

Recent

Recent bekeken woningen

Bekijk ons volledige aanbod